Casa di corte in vendita

Origgio, Via Dante Alighieri
€ 80.000
4 locali 4 locali
180 Mq 180 Mq
1 bagno 1 bagno

Casa di corte in vendita

Origgio, Via Dante Alighieri

Descrizione annuncio

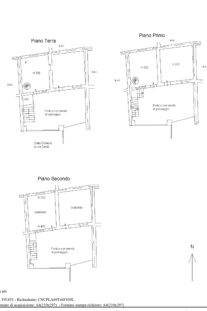
In pieno centro paese, a venti metri dalla fermata dell'autobus che collega Origgio alla tratta Saronno-Rho ogni venti minuti, ed a cinquanta metri da tutti i servizi principali del centro paese; soluzione da ristrutturare di ampia metratura con possibilità di creare diverse abitazioni composta da 3 piani di circa 160 metri quadrati, portici/terrazzi per circa 60 metri quadrati e rustico su 2 livelli di circa 45 metri quadrati con posto auto privato..

Mostra tutto

Nelle vicinanze

Trasporto pubblico Trasporto pubblico
ORI_10 - Via Dante 22
ORI_10 - Via Dante 22
20 m
ORI_09 - Largo Croce 5;OR047 - Largo Croce 3
ORI_09 - Largo Croce 5;OR047 - Largo Croce 3
140 m
Saronno Sud
Saronno Sud
2,6 Km
Ricariche auto elettriche Ricariche auto elettriche
Origgio Repubblica | EnelX
150 m
Origgio XXV Aprile | EnelX
640 m
Origgio Cantalupo | EnelX
1,1 Km
Studio Dottor Maurizio Pedone - Clinica Amicodentista
1,6 Km
Decathlon saronno
2,1 Km
Scuole Scuole
Scuole
130 m
Scuola Secondaria di Primo Grado Giovanni Schiaparelli
130 m
Scuola Primaria Alessandro Manzoni
460 m
Scuola statale San Giovanni Bosco
2,2 Km
Istituto Comprensivo Statale Via Lamarmora
2,5 Km
Farmacia Farmacia
Farmacia Galbiati
40 m
Farmacia San Giorgio
290 m
Staurenghi
1,7 Km
Farmacia Comunale
2,0 Km
Farmacia Moderna
2,3 Km
Supermercati Supermercati
Esselunga
2,4 Km
Tigros
2,6 Km
Esselunga di Lainate
2,6 Km
Carrefour Market
2,9 Km
Negozi Negozi
L'angolo del Gusto
60 m
Dal Prestine
80 m
Alle Cascine
180 m
Negozi
260 m
Preca Brummel S.P.A.
540 m
Bar Bar
Bar
560 m
Bar People
1,3 Km
CSB Betto Club
1,5 Km
Alternativa Bar
1,7 Km
Vintage Karaoke
2,9 Km
Ristoranti Ristoranti
Pizzeria da Pachito
140 m
Pizzeria La Favola
320 m
Bar Trattoria Pizzeria I tre porcellini
320 m
Villa Verde
400 m
Garden
490 m
Mostra tutto

Caratteristiche

Rif.:
60772364
Piano:
Su più livelli di 3
Totale piani:
3
Posti auto:
1
Terrazzi:
1
Camere da letto:
2
Mostra tutto
Prezzo Prezzo
€ 80.000
Rata mutuo Rata mutuo
€ 377 / mese
Spese annue Spese annue
€ 0
Proponi il tuo prezzoProponi il tuo prezzo
Immobile valutato con T·Valuta

Classe Energetica

G
G
G
G
G
G
G
G
G
EP globale non rinnovabile:
250.74 kW h/m² anno
EP globale rinnovabile:
0.16 kW h/m² anno
EP invernale del fabbricato:
EP estiva del fabbricato:
Anno di costruzione:
1930
Riscaldamento:
Assente

Ti interessa visionare l'immobile?

Fissa un appuntamento  Fissa un appuntamento

Richiedi informazioni

Clicca su Leggi per aprire l'informativa
* Questi campi sono obbligatori

Calcola il tuo mutuo

Semplice e senza impegno
Anticipo

( % )
Mutuo

( % )

pochi semplici passi

inserisci i tuoi dati
Questionario completato
Grazie per aver richiesto un appuntamento senza impegno con un nostro Consulente del Credito e Assicurativo.

Hai inserito correttamente tutti i dati necessari e a breve riceverai una e-mail con un link da convalidare per inviare i tuoi dati.
Affiliato
Studio Origgio D.I.
Via Dante, 41 21040 Origgio (VA)

Il nostro staff


  • Mauro Ciranna
    Affiliato

  • Alessandro Vaghi
    Collaboratore
Via Dante, 41 21040 Origgio (VA)
Zona: Origgio - Uboldo
Mostra su mappa
Orari: dal Lunedi al Venerdì 9.00-12.30/15.00-20.00 Sabato dalle 9.00-12.30/14.30-18.00
Affiliato
Studio Origgio D.I.
Via Dante, 41 21040 Origgio (VA)

2026 Tecnocasa Franchising S.p.A. - P. IVA 08365160152 - Via Monte Bianco 60/A 20089 Rozzano (MI). Ogni agenzia ha un proprio titolare ed è autonoma. Privacy policy | Policy utilizzo | Cookie policy