Quadrilocale in vendita

Origgio, Viale della Resistenza
€ 498.000
Prezzo aggiornato
4 locali 4 locali
140 Mq 140 Mq
3 bagni 3 bagni

Quadrilocale in vendita

Origgio, Viale della Resistenza

Descrizione annuncio

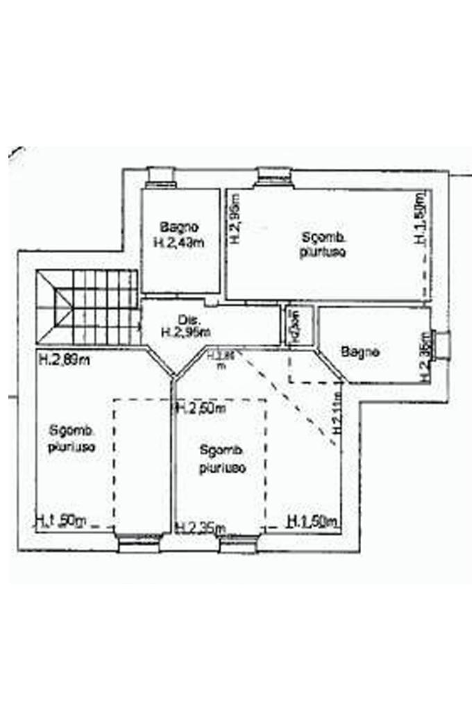
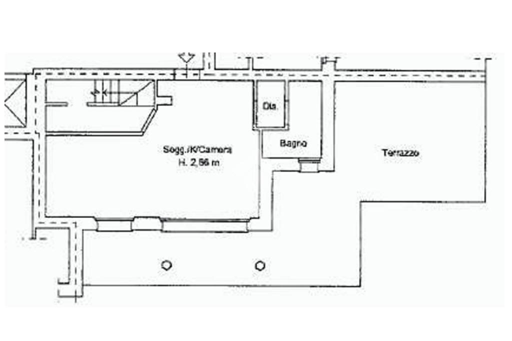
Nel cuore di Origgio, proponiamo un immobile di recente costruzione, sviluppato su 2 livelli e caratterizzato da ampi spazi luminosi. Con una superficie di 140 mq, questa abitazione offre un ambiente accogliente e funzionale. Al suo interno, troverete quattro locali ben distribuiti, tra cui tre camere da letto, ideali per garantire comfort e praticità. I tre bagni, tutti completi di doccia, assicurano comodità per tutta la famiglia. Il punto forte della proprietà è il terrazzo completo di tettoia bioclimatica, perfetto per momenti di relax all'aperto. L'immobile è dotato di ascensore, box auto singolo e cantina. Costruito nel 2019, l'appartamento si presenta in ottime condizioni e completamente arredato, pronto per accogliere i nuovi proprietari in un contesto residenziale tranquillo e ben servito.

Mostra tutto

Nelle vicinanze

Trasporto pubblico Trasporto pubblico
ORI_13 - Via Per la Muschiona (Cimitero)
ORI_13 - Via Per la Muschiona (Cimitero)
90 m
Trasporto pubblico
330 m
Ricariche auto elettriche Ricariche auto elettriche
Origgio XXV Aprile | EnelX
130 m
Origgio Cantalupo | EnelX
470 m
Origgio Repubblica | EnelX
810 m
Studio Dottor Maurizio Pedone - Clinica Amicodentista
1,8 Km
Decathlon saronno
2,8 Km
Scuole Scuole
Scuole
680 m
Scuola Secondaria di Primo Grado Giovanni Schiaparelli
680 m
Scuola Primaria Alessandro Manzoni
720 m
Istituto Comprensivo Statale Via Lamarmora
1,8 Km
Scuola Media Statale E. Fermi
2,0 Km
Farmacia Farmacia
Farmacia San Giorgio
700 m
Farmacia Galbiati
780 m
Farmacia Comunale 2
1,9 Km
Staurenghi
2,3 Km
Farmacia Comunale
2,5 Km
Supermercati Supermercati
Esselunga di Lainate
2,0 Km
Tigros
2,7 Km
Negozi Negozi
Negozi
560 m
Alle Cascine
630 m
Dal Prestine
730 m
L'angolo del Gusto
740 m
Preca Brummel S.P.A.
880 m
Bar Bar
Bar
1,1 Km
CSB Betto Club
1,6 Km
Bar People
1,8 Km
Alternativa Bar
2,4 Km
Bar Brescia
2,5 Km
Ristoranti Ristoranti
Bar Trattoria Pizzeria I tre porcellini
460 m
Pizzeria La Favola
460 m
Pizzeria da Pachito
640 m
Ristoranti
1,1 Km
Cascina Malingamba
1,2 Km
Mostra tutto

Caratteristiche

Rif.:
61153742
Piano:
3 di 3 con ascensore (Piano su più livelli)
Box:
1
Terrazzi:
1
Camere da letto:
3
Arredamento:
Completo
Mostra tutto
Prezzo Prezzo
€ 498.000
Rata mutuo Rata mutuo
€ 2.351 / mese
Spese annue Spese annue
€ 2.800
Proponi il tuo prezzoProponi il tuo prezzo

Classe Energetica

A2
A2
A2
A2
A2
A2
A2
A2
A2
EP globale non rinnovabile:
64.59 kW h/m² anno
EP globale rinnovabile:
29.51 kW h/m² anno
EP invernale del fabbricato:
EP estiva del fabbricato:
Anno di costruzione:
2019
Riscaldamento:
Centralizzato
Tipo impianto:
A pavimento
Tipo alimentazione:
Metano

Prezzo ridotto di €1 (1%%)

Ti interessa visionare l'immobile?

Fissa un appuntamento  Fissa un appuntamento

Richiedi informazioni

Clicca su Leggi per aprire l'informativa
* Questi campi sono obbligatori

Calcola il tuo mutuo

Semplice e senza impegno
Anticipo

( % )
Mutuo

( % )

pochi semplici passi

inserisci i tuoi dati
Questionario completato
Grazie per aver richiesto un appuntamento senza impegno con un nostro Consulente del Credito e Assicurativo.

Hai inserito correttamente tutti i dati necessari e a breve riceverai una e-mail con un link da convalidare per inviare i tuoi dati.
Affiliato
Studio Origgio D.I.
Via Dante, 41 21040 Origgio (VA)

Il nostro staff


  • Mauro Ciranna
    Affiliato
Via Dante, 41 21040 Origgio (VA)
Zona: Origgio - Uboldo
Mostra su mappa
Orari: dal Lunedi al Venerdì 9.00-12.30/15.00-20.00 Sabato dalle 9.00-12.30/14.30-18.00
Affiliato
Studio Origgio D.I.
Via Dante, 41 21040 Origgio (VA)

2025 Tecnocasa Franchising S.p.A. - P. IVA 08365160152 - Via Monte Bianco 60/A 20089 Rozzano (MI). Ogni agenzia ha un proprio titolare ed è autonoma. Privacy policy | Policy utilizzo | Cookie policy